Rif: IMMO-121670300
CHIARANO
TREVISO
In una tranquilla zona residenziale proponiamo in vendita una porzione di bifamiliare con giardino esclusivo e due unità abitative indipendenti, perfetta per famiglie che desiderano condividere gli spazi mantenendo la propria autonomia, oppure per chi cerca una soluzione abitativa con dependance o studio/ufficio separato.
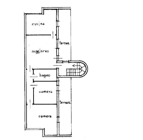
L'abitazione principale si sviluppa al piano terra come segue: ingresso su ampio soggiorno, cucina abitabile, tre camere da letto e un bagno finestrato. Gli ambienti sono ben distribuiti e godono di ottima esposizione, rendendo la casa ariosa e accogliente. L'unità immobiliare è inoltre dotata di impianto fotovoltaico.
Al piano seminterrato troviamo un garage di circa 35 mq con zona bagno/lavanderia, oltre a un magazzino di 40 mq, ideale come deposito o spazio hobby.
Attraverso una scala, accessibile sia dal giardino che direttamente dal garage, si accede al piano primo dove è stato realizzato un secondo appartamento indipendente. Questa unità è composta da soggiorno, cucina abitabile, due camere da letto, un bagno finestrato e due ampie terrazze vivibili di circa 16 e 24 mq, perfette per momenti di relax.
Anche questo appartamento dispone di un proprio garage singolo, una zona lavanderia e un magazzino di 40 mq al piano seminterrato.
Una soluzione versatile, solida e completa, ideale per chi cerca spazi generosi, indipendenza e comodità in un unico immobile. Per informazioni, planimetrie o per fissare una visita non esitare a contattarci.
L'abitazione principale si sviluppa al piano terra come segue: ingresso su ampio soggiorno, cucina abitabile, tre camere da letto e un bagno finestrato. Gli ambienti sono ben distribuiti e godono di ottima esposizione, rendendo la casa ariosa e accogliente. L'unità immobiliare è inoltre dotata di impianto fotovoltaico.
Al piano seminterrato troviamo un garage di circa 35 mq con zona bagno/lavanderia, oltre a un magazzino di 40 mq, ideale come deposito o spazio hobby.
Attraverso una scala, accessibile sia dal giardino che direttamente dal garage, si accede al piano primo dove è stato realizzato un secondo appartamento indipendente. Questa unità è composta da soggiorno, cucina abitabile, due camere da letto, un bagno finestrato e due ampie terrazze vivibili di circa 16 e 24 mq, perfette per momenti di relax.
Anche questo appartamento dispone di un proprio garage singolo, una zona lavanderia e un magazzino di 40 mq al piano seminterrato.
Una soluzione versatile, solida e completa, ideale per chi cerca spazi generosi, indipendenza e comodità in un unico immobile. Per informazioni, planimetrie o per fissare una visita non esitare a contattarci.
Consistenze
| Descrizione | Superficie | Sup. comm. |
|---|---|---|
| Principali | ||
| Immobile - piano terra | 132 Mq | 132 Mqc |
| Box/Garage - seminterrato | 35 Mq | 18 Mqc |
| Cantina - seminterrato | 40 Mq | 10 Mqc |
| Immobile - 1° piano | 55 Mq | 55 Mqc |
| Terrazza - 1° piano | 40 Mq | 12 Mqc |
| Cantina - seminterrato | 40 Mq | 10 Mqc |
| Box/Garage - seminterrato | 20 Mq | 10 Mqc |
| Totale | 247 Mqc | |






