Rif: IMMO-123224161
VAZZOLA
TREVISO
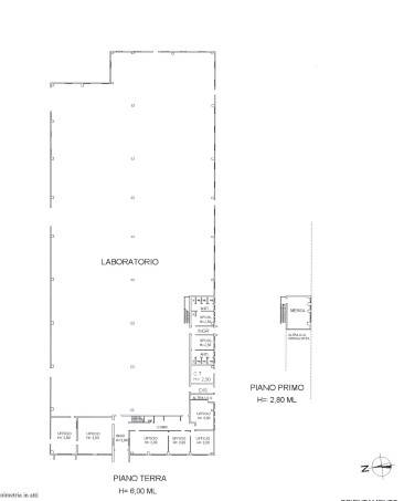
Complesso industriale "Ex Eral – INCO Srl", opportunità situata a Vazzola, in provincia di Treviso. Con una superficie totale di 9.090 mq, di cui 4.491 mq coperti, questo capannone è ideale per aziende in cerca di uno spazio produttivo completo e funzionale. Il primo fabbricato offre 1.414 mq, con 180 mq dedicati agli uffici e 1.234 mq di magazzino, mentre il secondo fabbricato si estende per 3.077 mq, comprendendo 474 mq di uffici e 2.603 mq tra magazzino e laboratorio.
La posizione strategica garantisce un facile accesso alle principali arterie stradali della zona, rendendo questo immobile ideale per attività commerciali e produttive. Gli uffici sono già pronti e dotati di climatizzatore e riscaldamento a pavimento, offrendo un ambiente di lavoro confortevole e funzionale. Inoltre, la cabina elettrica è progettata per garantire un'elevata potenza, soddisfacendo le esigenze di importanti attività.
Con una superficie scoperta di circa 4.600 mq è ideale per movimentazione merci e parcheggi. La struttura è stata recentemente ristrutturata, con il tetto rifatto a fine 2023 secondo le normative vigenti e aggiornato il sistema antincendio.
Questa proprietà rappresenta un'ottima opportunità per aziende alla ricerca di un sito produttivo completo, con ampie metrature, spazi direzionali già pronti e grande funzionalità operativa.
La posizione strategica garantisce un facile accesso alle principali arterie stradali della zona, rendendo questo immobile ideale per attività commerciali e produttive. Gli uffici sono già pronti e dotati di climatizzatore e riscaldamento a pavimento, offrendo un ambiente di lavoro confortevole e funzionale. Inoltre, la cabina elettrica è progettata per garantire un'elevata potenza, soddisfacendo le esigenze di importanti attività.
Con una superficie scoperta di circa 4.600 mq è ideale per movimentazione merci e parcheggi. La struttura è stata recentemente ristrutturata, con il tetto rifatto a fine 2023 secondo le normative vigenti e aggiornato il sistema antincendio.
Questa proprietà rappresenta un'ottima opportunità per aziende alla ricerca di un sito produttivo completo, con ampie metrature, spazi direzionali già pronti e grande funzionalità operativa.
Consistenze
| Descrizione | Superficie | Sup. comm. |
|---|---|---|
| Principali | ||
| Capannone - piano terra | 4.491 Mq | 4.491 Mqc |
| Esterno - piano terra | 4.599 Mq | 460 Mqc |
| Totale | 4.951 Mqc | |






